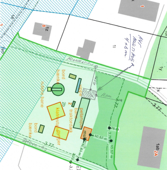
På generalforsamlingen den 10 maj 2025, blev der vedtaget, at forslaget fra bestyrelsen om opførsel af et nyt opbevarings skur af foreningens badebro
Bestyrelsen fortsætter arbejdet, søger fonde, og får det sidste på plads med godkendelser mm.
Tak for opbakningen, det gør det hele nemmer at være frivillig i bestyrelsen Når der bakkes op om det frivillige arbejde der ligger bag.
Skuret kommer til at koste ca. 75.000 kr. i materialer og man forventer ca. 110 timers frivilligt arbejde i projektet.
De første 25.000 kr. er der givet tilsagn om.
Tilsagnet kommer fra sparvest fonden skive, hvis projektet gennemføres inden udgangen af 2025.

August 2025
Så er vi i gang! 🙌


Byggetilladelsen er nu godkendt ✔️📜, og vores mange engagerede frivillige har allerede smøget ærmerne op. Der bliver gravet, målt, båret og knoklet – og det kan allerede nu ses på pladsen. Jorden er fjernet, der er lagt stabilgrus, og de første materialer er ankommet. Skuret er på vej fra idé til virkelighed! 👷♂️🏠🛠️

Det er en stor glæde at opleve, hvordan frivillige kræfter kan løfte et projekt som dette. Uden fællesskabet var det slet ikke muligt, og hver en time, der bliver lagt i arbejdet, bringer os tættere på målet. 👏💪
Kom endelig forbi og følg processen, når du alligevel er ude at lufte hunden 🐕 eller gå en tur med familien 👨👩👧👦. Et smil, en high-five eller et “godt gået” giver masser af energi til dem, der slider på pladsen.
Og skulle nogen have lyst til at kigge forbi med en lille forfriskning ☕ eller en hjemmebagt kage 🧁, så bliver det modtaget med åbne arme – hårdt arbejde smager altid bedre med lidt sødt til ganen. 🍪
Tak til alle jer, der giver en hånd med – sammen skaber vi noget, vi kan være stolte af i mange år frem. 🥳


En ny weekend – nye kræfter på pladsen 💪 6/9-2025
Arbejdet fortsætter, og igen i denne weekend summer pladsen af aktivitet. Vores uundværlige frivillige har endnu en gang fundet vej til Hostrup, hvor der bliver lagt mange timer og masser af kræfter.

Denne gang nyder vi især godt af de faglærte hænder, der har meldt sig til opgaven. Med deres ekspertise bygges tagkonstruktionen nu op – et vigtigt skridt, inden taget senere får tagpap på. 🏗️🔨



Derudover var mange frivillige også mødt op for at hjælpe med den store bro-optagning. Et krævende stykke arbejde, der blev klaret i fællesskab med godt humør og sved på panden. 👏☀️



Det er fantastisk at se, hvordan både fagfolk og hjælpende hænder mødes i et stærkt samarbejde. Hver eneste indsats bringer os tættere på målet, og projektet tager mere og mere form for hver weekend, der går.

Kom endelig forbi pladsen, giv et hep, et skulderklap – eller måske en lille forfriskning ☕🧁 til de frivillige. Det varmer og giver nye kræfter!
Weekenden uge 38
Tagpappet er kommet på og taget er klar til at blive kranet på plads


Weekenden banker på og en store kran blev inviteret
Den store tunge tagkonstruktions skulle kranes på plads. og se nu hvor fint det hele bliver


For pokker vi har bare nogle dygtige frivillige i vores område
Smukt håndværk ☀️🔨👷♂️🪚
Uge 41 + 42

🏁 Så står det der – vores nye opbevaringsskur til badebroen! 🏠✨
Efter mange timers frivilligt arbejde, masser af grin, sved på panden og kaffe på kanden ☕💪 kan vi nu stolt vise resultatet frem.
Det nye opbevaringsskur er færdigt – solidt, smukt og klar til mange års brug ved Hostrup. 🌊
Et kæmpe TAK til alle de frivillige, der har lagt tid, kræfter og hjerte i projektet. ❤️
Fra de første spadestik til sidste bræt er sat på, har I vist, hvad fællesskab virkelig betyder. 👷♀️🪚🔩


En stor tak skal også lyde til vores sponsorer og fonde, der har støttet projektet økonomisk og gjort det muligt at føre drømmen ud i livet. 🙏
Uden jer – og uden de mange hænder, der har løftet i flok – stod vi ikke her i dag.

Kom endelig forbi og se det flotte resultat – og send gerne et stort skulderklap 👏 til de frivillige, der har skabt noget, vi alle kan være stolte af. 💚

Sammen bygger vi ikke bare et skur – vi bygger fællesskab! 🥳🌟